ФотоВидеоПанорама
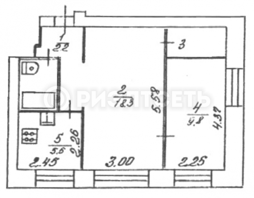
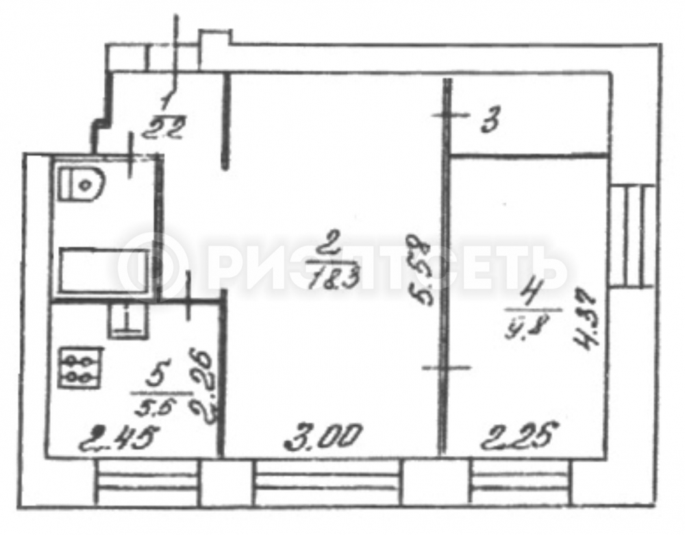
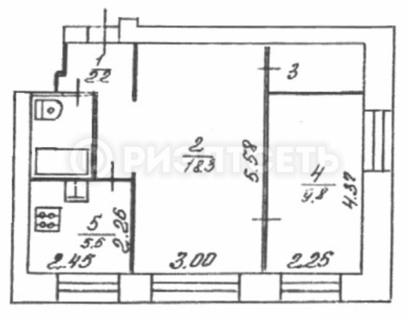
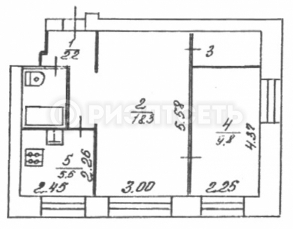
40 м2Общая28 м2Жилая6 м2Кухня2Комнаты2 этажиз 2
Цена объекта:2 790 000 рублей
+7(8152)777-051Закажите обратный звонок

Дополнительная информация:

Кирпичный двухэтажный дом, очень тёплый. Квартира с ремонтом, выровнены стены, полы ламинат, полностью поменяна электрика, стояки, разводка труб, двухуровневые потолки, все окна стеклопакеты, радиаторы отопления поменяны, поменяны межкомнатные и входная дверь. Частично остаётся мебель. Невысокие коммунальные платежи. Один взрослый собственник.
Все соседи приличные, маргиналов нет, в доме всегда тихо.

Крышу собственник ремонтировал за свой счёт несколько лет назад, проблемы с ней исключены.

Развитая инфраструктура района радует удобством: в шаговой доступности спортивный комплекс Авангард, кинотеатр Аврора, детский сад, школа, 35-й судоремонтный завод, остановка общественного транспорта и разнообразные магазины.

Идеальный вариант для переезда из области или другого региона при ограниченном бюджете комфорт и надёжность по доступной цене. Номер объекта в базе (ID) 346656.
Рекламный пакет сформирован агентом ИП Прокопенко Константин Игоревич, переговоры с покупателями ведутся от имени и в интересах владельца данной недвижимости
по поручению ООО "Агентство недвижимости "Риэлт" на основании Технического задания и Агентского договора № 20/2017 от 27.10.2017г.
НапечататьИзбранные объектыОбъект в избранномДобавить в избранное
Номер объекта: 10245
Дата публикации: 17.04.25
Количество просмотров: 128331
Похожие предложения

Вы хотите работать
в сфере недвижимости?

x