ФотоВидеоПанорама
  • Город: Мурманск
  • Район: Ленинский
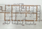
  • Общая площадь: 313.0 м2
Цена объекта:15 000 000 рублей
+7(8152)777-051Закажите обратный звонок

Дополнительная информация:

Предлагается к продаже прибыльный, действующий магазин "Диана"!

Общая площадь 249 кв. м, к которой органично примыкает узаконенная пристройка в 64 кв. м. Высокие потолки (2.90 м) создают ощущение простора и свободы.
К удобству покупателей и персонала собственная парковка, два санузла и функциональные подсобные помещения. Три отдельных входа открывают возможности для различных бизнес-сценариев, в том числе разделения на несколько независимых торговых точек. Юридически оформлен как цокольный этаж с узаконенной внешней пристройкой. В общую площадь элегантно вписано отремонтированное офисное помещение с отдельным входом идеальное решение для управления бизнесом.
Выгодное расположение гарантирует непрерывный поток как пешеходного, так и автомобильного трафика.
Единственный собственник физическое лицо владеет магазином с 2007 года, что подтверждает стабильность и успешность бизнеса.
Номер объекта в базе (ID) 362398.
Рекламный пакет сформирован агентом ИП Прокопенко Константин Игоревич, переговоры с покупателями ведутся от имени и в интересах владельца данной недвижимости
по поручению ООО "Агентство недвижимости "Риэлт" на основании Технического задания и Агентского договора № 20/2017 от 27.10.2017г.
НапечататьИзбранные объектыОбъект в избранномДобавить в избранное
Номер объекта: 10892
Дата публикации: 29.10.25
Количество просмотров: 2275

Вы хотите работать
в сфере недвижимости?

x